- Wohneinheitenfläche
- Um 88 m²
- Grundstücksfläche
- Um 145 m²
- Baujahr
- Baujahr 1982
- Anzahl der Zimmer
- 5 Räume (3 Schlafzimmer)
Bewohnt vom ersten Eigentümer ist diese Wohnung immer gut gepflegt und rechtzeitig mit Anpassungen versehen worden, die das Wohnobjekt den aktuellen Wünschen anpassen. So gibt es 9 Solarpaneelen und letztes Jahr wurde noch ein neuer Boiler installiert.
Die Anlage ist noch original, aber ohne konstruktive Anpassungen sind Änderungen an der Anlage leicht durchzuführen. Man denkt an die Zusammenlegung des Wohnzimmers und der Küche; also eine offene Küche. Für einen Anbau und/oder ein Dachgeschoss gibt es mehr als genug Raum, und dadurch kann das (offizielle) Wohnfläche noch erheblich wachsen und das bedeutet Mehrwert.
Wijchen ist ein gemütlicher Ort mit einem echten Dorfgemeinschaftszentrum. Im Zentrum gibt es eine umfangreiche Auswahl an Läden und alle wichtigen öffentlichen Einrichtungen sind gut verfügbar. In walking distance befindet sich das Einkaufszentrum Zuiderpoort; Bequemlichkeit dient dem Menschen!
Die Zugänglichkeit ist gut, es gibt eine perfekte Anbindung an die A50 und A73 und Nijmegen liegt tatsächlich in einer Steinwurfweite. Dort finden Sie alle regionalen Einrichtungen wie Krankenhäuser, Universität und Fachhochschule sowie verschiedene andere Institutionen. Die Bahnhöfe Wijchen und Nijmegen-Dukenburg sorgen für eine angenehme Bahnverbindung auf der Strecke von Nijmegen nach Den Bosch.
Einteilung:
Erdgeschoss: Eingang; Raum mit Messsystem und Garderobe. Die Wohnzimmer ist Z-förmig und verfügt an der Vorderseite über eine Nische und es gibt einen Vorratsraum unter der Treppe. An der Rückseite befindet sich die geschlossene Küche, die in L-form aufgestellt ist und auf den sonnigen Hintergarten hinausgeht. Es gibt ein eingebautes Gaskochfeld, eine Abzugshaube, einen Ofen und einen Kühlschrank.
Außerdem ein separater Hinterausgang mit Tür zur hinteren Terrasse, eine Treppe zu der Etage und ein Badezimmer mit hängendem WC und Fontäne.
Eerste verdieping: overloop; drie slaapkamers van respectievelijk 8, 9 en 14 m². De badkamer is vernieuwd in 2004 maar is nog super netjes. Deze licht betegelde ruimte beschikt over een douche, wastafelmeubel én een tweede hangend toilet.
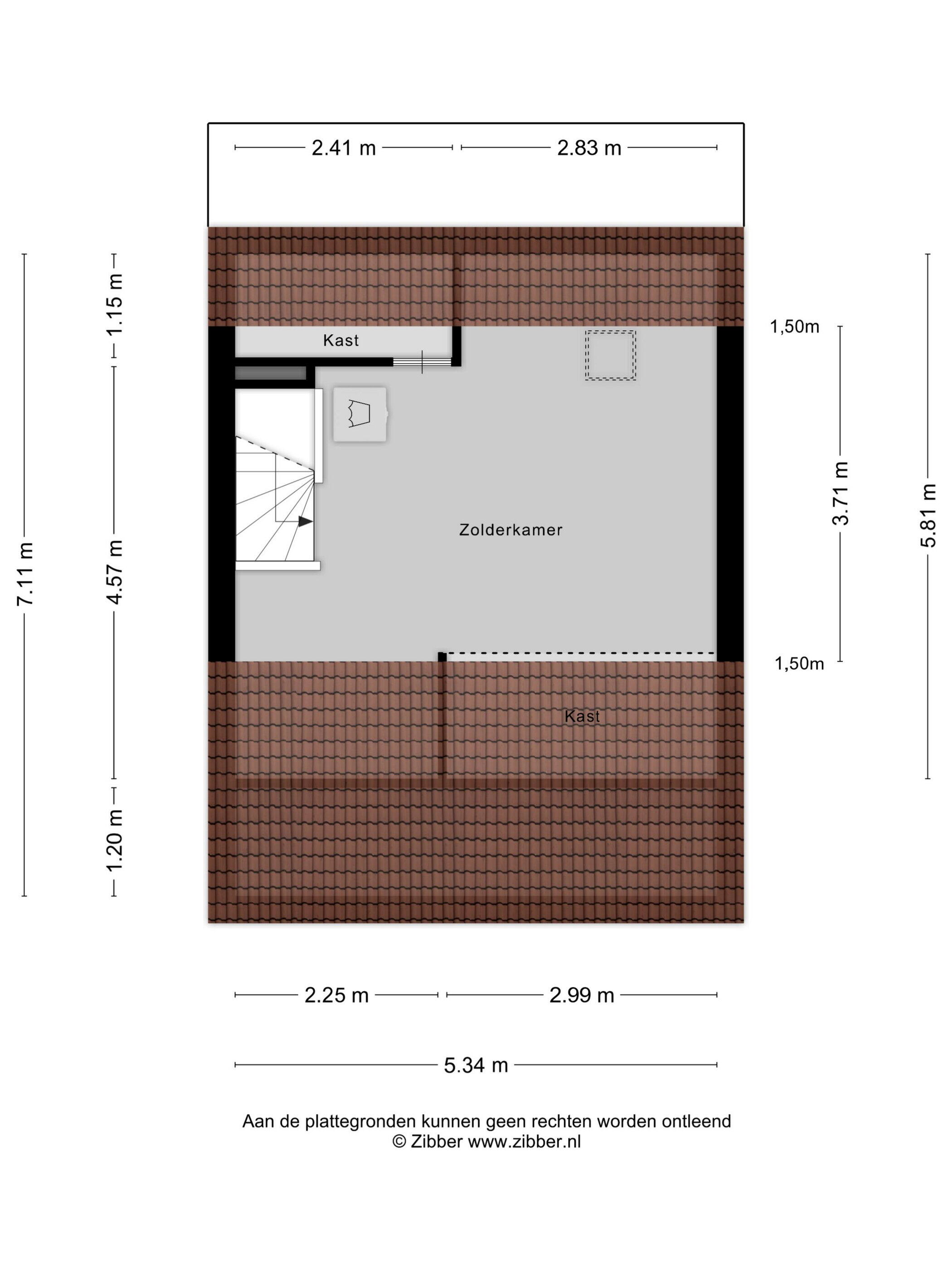
Zolderetage: thans één open zolderruimte met opstelplaats voor witgoed en vaste kast waarin de cv-ketel is gesitueerd. En verder heel veel opbergruimte. Deze etage is makkelijk te voorzien van extra dakramen of een dakkapel en de ruimte is groot genoeg om op te splitsen in een voorzolder en zolderkamer.
Besonderheiten:
- Centrale verwarming via Intergas combiketel uit 2024.
- De woning beschikt over dak- en muurisolatie en dubbele beglazing op de begane grond.
- Er zijn 9 zonnepanelen uit 2020 en in 2024 hebben deze 2200Kwh opgeleverd.
- Keurig onderhouden.
- Diverse op- en uitbouwmogelijkheden.
- Parkeren op eigen terrein onder je eigen carport.
- Kindervriendelijke woonomgeving met louter laagbouw.
- Winkels voor de dagelijkse behoefte letterlijk om de hoek.
- Gute Erreichbarkeit.
Übertrag
- Verhandlungspreis
- 375.000,- EUR
- Status
- Verkauft
- Hinnehme
- Im Gespräch
Bau
- Gegenstandsart
- Eingefamilles Haus, Reihenhaus
- Bauart
- Existierende Bauwerke
- Baujahr
- 1982
- Dachart
- Dach First mit Schindeln bedeckt
Oberfläche und Inhalt
- Wohneinheitenfläche
- 88 m²
- Grundstücksfläche
- 145 m²
- Inhalt
- 381 m³
- Sonstiger eingebautes Raum
- 20 m²
- Außenbereich
- 6 m²
Einteilung
- Anzahl der Zimmer
- 5 Räume (3 Schlafzimmer)
- Anzahl der Badezimmer
- 1 Badezimmer
- Badezimmerausstattung
- Toilette, Dusche, Waschbeckenanlage
- Anzahl der Wohnetagen
- 3 Wohnetagen
- Maßnahmen
- TV-Kabel, Dachstuhl, Glasfaserkabel, Solarmodule
Energie
- Energietag
- A
- Energietag-Register
- 28-10-2025
- Isolation
- Dachisolierung, Wandisolierung, teilweise Doppelglas
- Heizung
- Brennkessel
- Warmes Wasser
- Brennkessel
- Kessel
- Intergas hr eco 30 cw4 combiketel uit 2024 (eigendom)
Außenraum
- Lage
- An ruhiger Straße, in Wohngebiet
- Garten
- Hintergarten, Vorgarten
- Abmessungen des Hintergartens
- 67 m² (12 meter diep en 5.55 meter breed)
- Lage des Gartens
- Liegende im Westen und erreichbar über den Hinterausgang
Bergspace
- Schleifwerkstatt / Lager
- Einzeln stehendes Steinhaus
- Maßnahmen
- Mit Elektrik ausgestattet
Garage
- Garagenart
- Wagenport
Parkplatz
- Parkplatzart
- Auf eigenen Grund
Hypothekenbelastungen
Eigene Einlage:
Ersparnisse / Überwert
Zins:
Niedrigste 10-Jahres-Zinssatz
Niedrigste 10-Jahres-Zinssatz
2,85% - Centraal Beheer Groen... - NHG
3,08% - Centraal Beheer Groen... - 80%
Niedrigste 20-jährige Zinssatz
3,29% - Centraal Beheer Groen... - NHG
3,52% - Centraal Beheer Groen... - 80%
Niedrigste 30-jährige Zinssatz
3,41% - Centraal Beheer Groen... - NHG
3,74% - Centraal Beheer Groen... - 80%
Hypothek:
Bruttomonatslasten: € 0 p/m
Nettomonatskosten: € 0 p/m
Wie berechnen wir dies?
Der Zinssatz basiert auf dem niedrigsten 10-jährigen Festzins für einen einzelnen Hypothekenteil. Der angegebene Zinssatz (2.85% met NHG) wurde am 03-02-2026 überprüft. Diese Berechnung basiert auf einer Annuitätenhypothek, die vollständig zurückgezahlt wird, wobei die monatlichen Zahlungen während der gesamten Laufzeit gleich bleiben. Der tatsächliche Zinssatz und die monatlichen Nettokosten können je nach Ihrer persönlichen Situation und dem Hypothekengeber variieren. Wenden Sie sich für eine genaue Berechnung und Beratung an einen Finanzberater. Aus dieser Berechnung können keine Rechte abgeleitet werden; sie dient lediglich als Orientierung.
Dokumentation
Katasterkarte
Lebensumgebung
Planansichten PDF
Wertbescheinigung
Krankenkassenbeleg
Broschüre
Besuchen Sie unsere Website
Anmeldung move.nl
Besichtigung
Boden verlegen
Wertschätzung
Suchanfrage
Alles herunterladen
Sonnengrenzen betrachten
Auf der Karte
Bewohner von Wijchen
Zahlen für Postleitzahl-Region 6605
- Gesamtbevölkerungszahl
- 36260 Bewohner
- Männer
- 49%
- Frauen
- 51%
Bewohner von Wijchen
Zahlen für Postleitzahl-Region 6605
- bis 15 Jahre
- 12%
- 15 bis 25 Jahre
- 13%
- 25 bis 35 Jahre
- 19%
- 45 bis 65 Jahre
- 34%
- 65 und älter
- 21.7%
Haushalte von Wijchen
Zahlen für Postleitzahl-Region 6605
- Einpersonig ohne Kinder
- 27%
- Erwachsene ohne Kinder
- 32%
- Haushalte ohne Kinder
- 59%
Haushalte von Wijchen
Zahlen für Postleitzahl-Region 6605
- Haushalte mit einem Kind
- 20%
- Haushalte mit mehreren Kindern
- 21%
- Haushalte mit Kindern
- 41%
Wohnungen in Wijchen
Zahlen für Postleitzahl-Region 6605
- Wohnungen vor 1945
- 1%
- Wohnungen zwischen 1945 und 1965
- 1%
- Wohnungen zwischen 1965 und 1975
- 1%
- Wohnungen zwischen 1975 und 1985
- 32%
- Wohnungen zwischen 1985 und 1995
- 39%
Wohnungen in Wijchen
Zahlen für Postleitzahl-Region 6605
- Wohnungen zwischen 1995 und 2005
- 25%
- Wohnungen zwischen 2005 und 2015
- 3%
- Wohnungen nach 2015
- 1%
- Mietwohnungen
- 40%
- Eigentumswohnungen
- 60%
Sonstige Einzahlungen Wijchen
Zahlen für Postleitzahl-Region 6605
- Durchschnittliche WOZ-Wert
- € 309.000,-
- Personen unter 65 Jahren mit Hinterbliebenengeld
- 8%
Sonstige Einzahlungen Wijchen
Zahlen für Postleitzahl-Region 6605
- Adressen pro Quadratkilometer
- 1301
- Urbanität (Skala von 1 bis 5)
- 60%
Falls Sie Fragen haben oder eine Besichtigung planen möchten, können Sie das Formular rechts verwenden. Danach wird Ihnen kurzfristig jemand kontaktieren.
Kasteellaan 23
6602 DB, Wijchen
024 64 90100 binnendienst@driessenmakelaardij.nl www.driessenmakelaardij.nlKontakt aufnehmen
Seit 40 Jahren Ihr Immobilienmakler des Vertrauens
Enterprisener Immobilienmakler mit Ambitionen
Sie möchten ein Haus kaufen, verkaufen oder einschätzen lassen. Am liebsten kontaktieren Sie einen zuverlässigen Immobilienmakler in Ihrer Nähe. Aber wie finden Sie genau den Makler, der am besten zu Ihnen passt? Das Angebot ist so groß.
Driessen Maklerbüro macht Ihre Entscheidung erheblich einfacher. Wie? Zunächst sind wir seit vierzig Jahren ein Begriff in der Region. Mit Büros in Wijchen und Nijmegen kennen wir den lokalen Immobilienmarkt wie unsere Westentasche. Und nicht unwichtig: Der Immobilienmarkt kennt uns. 'Denn oft ist der erste Schritt eines Wohnungssuchers der Weg zu unserem Büro.' Dadurch bringen wir Anfrage und Angebot schnell zusammen und passen perfekt an die Wünsche unserer Kunden und potenziellen Kunden an. Darüber hinaus sind wir Mitglied bei der NVM, der größten Branchenorganisation im Maklergewerbe. Unsere Mitarbeiter sind daher bestens in der Lage, den gesamten Käufers- und Verkäuferprozess von Anfang bis Ende professionell zu begleiten.
Ihre Ambitionen sind unsere Ambitionen. Das bedeutet: Sie erwarten von uns, dass wir unser Bestes tun, um Ihnen die Qualität zu bieten, für die wir bereits seit so langer Zeit bekannt sind. Daran können Sie uns halten!
Neueste Bewertungen
-
Zesakkers 2015
Het contact met de makelaar verliep erg goed. Goed bereikbaar, korte lijntjes en deskundig. Erg tevreden
-
Aalsburg 2524
Fijne en goede communicatie.Goed advies en meedenken met de klant.Zo kan het dus ook 😀Bedankt Ivonne Jansen + binnendienst team
-
Marskramer 51
Prettig contact met de makelaar; zij hield ons tussentijds steeds op de hoogte na een bezichtiging; heel fijn!